Il Green Data Center inaugurato dall’ENI in settimana ha raccolto forti interessi da parte di coloro i quali conoscono le realtà dei datacenter e la relativa corsa all’innovazione per risolvere i problemi insiti in strutture di questo tipo. A tal fine può essere utile avere a disposizione, oltre a tutte le informazioni legate ad efficienza, design e potenza di calcolo, anche una mappa degli ambienti.
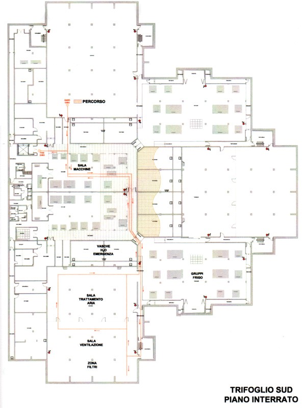
Nella fattispecie la mappa del Green Data Center disponibile è quella relativa al “trifoglio sud”, ossia parte dell’impianto comprensiva di tre lembi dell’esagono complessivo. Nelle immagini è possibile osservare l’area riservata alle vasche di refrigerazione di emergenza, la sala di trattamento aria (attraverso la quale è possibile osservare i grossi filtri per la pulizia dell’aria), la sala di ventilazione (all’interno della quale è forte il vento avvertito per effetto delle ventole che forzano il flusso verso la sala macchine), ed i gruppi frigo. Non si vede invece la sala server, poiché la mappa è relativa al piano interrato mentre le sale informatiche sono dislocate al piano superiore lungo il percorso dell’aria verso l’uscita.

Mappa ENI Green Data Center
La linea rossa visibile è quella percorsa dai visitatori durante l’inaugurazione, ossia quella lungo la quale anche la redazione di Webnews ha potuto effettuare i propri scatti fotografici.